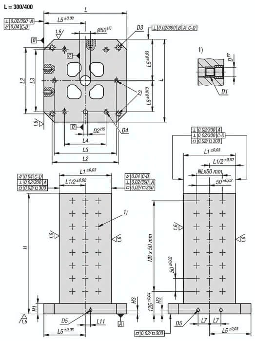
Beschreibung
Werkstoff:
GJL 300.
Ausführung:
Auflage- und Aufspannflächen präzisionsbearbeitet.
Hinweis:
Rasterabstand 50 ±0,02 mm.
Aufspannwürfel mit Rasterbohrungen werden auf horizontalen Bearbeitungszentren eingesetzt.
Die alphanumerisch beschrifteten Rasterbohrungen garantieren eine definierte Zuordnung der Spannelemente im Wiederholfall.
Die Aufspannwürfel sind abgestimmt auf Maschinentischen für Werkzeugmaschinen nach DIN 55201 und JIS6337-1980.
Positionierbolzen zum Abstecken der Paletten auf Maschinentischen nach DIN 55201 müssen separat bestellt werden.
Schutzstopfen zum Verschließen der Rasterbohrungen müssen separat bestellen werden.
Lieferung inklusive Ringschrauben für den Transport.
Weitere Abmessungen auf Anfrage.
Zeichnungshinweis:
1) Rasterbohrung
2) Durchgangsbohrung für Zylinderschraube DIN 912 (D3/D4)
Spezifikationen
Ausführung 1
mit Rasterbohrungen
D
12
Material Grundkörper
GJL300
L
400
D5
M16
D1
M12
D2
20
D3
M16
L1
250
H
500
L2
320
H1
50
L5
200
H3
18
L7
55
NL=Anzahl in Längsrichtung
3
NB=Anzahl in Querrichtung
7
Anzahl der Rasterbohrungen
128
D4
M12
L11
25
L3
300
L4
200
L6
150
Gewicht
155 KG



