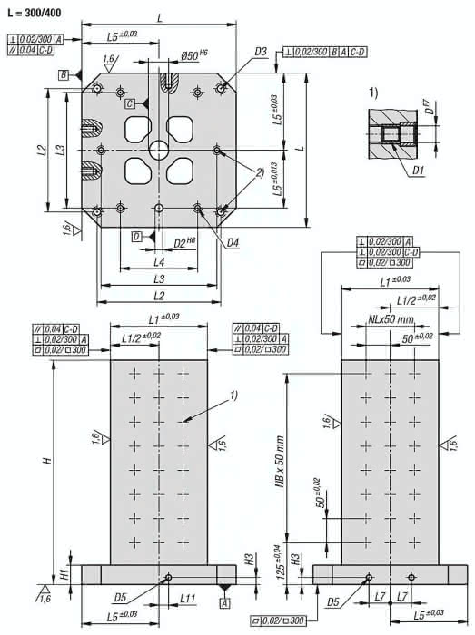
Beschreibung
Werkstoff:
GJL 300.
Ausführung:
Auflage- und Aufspannflächen präzisionsbearbeitet.
Hinweis:
Rasterabstand 50 ±0,02 mm.
Aufspannwürfel mit Rasterbohrungen werden auf horizontalen Bearbeitungszentren eingesetzt.
Die alphanumerisch beschrifteten Rasterbohrungen garantieren eine definierte Zuordnung der Spannelemente im Wiederholfall.
Die Aufspannwürfel sind abgestimmt auf Maschinentischen für Werkzeugmaschinen nach DIN 55201 und JIS6337-1980.
Positionierbolzen zum Abstecken der Paletten auf Maschinentischen nach DIN 55201 müssen separat bestellt werden.
Schutzstopfen zum Verschließen der Rasterbohrungen müssen separat bestellen werden.
Lieferung inklusive Ringschrauben für den Transport.
Weitere Abmessungen auf Anfrage.
Zeichnungshinweis:
1) Rasterbohrung
2) Durchgangsbohrung für Zylinderschraube DIN 912 (D3/D4)
Spezifikationen
Material Grundkörper
GJL300
Ausführung 1
mit Rasterbohrungen
L
300
D4
M10
D
12
D5
M12
D1
M12
L1
150
D2
20
L3
200
D3
M12
H
500
L2
250
H1
50
L5
150
L6
100
H3
15
L7
40
Anzahl der Rasterbohrungen
64
L11
0
NL=Anzahl in Längsrichtung
1
NB=Anzahl in Querrichtung
7
Gewicht
90 KG



