Beschreibung
Werkstoff:
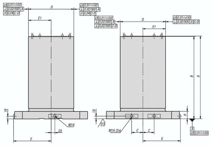
GJL 300.
Ausführung:
Bezugsflächen präzisionsbearbeitet.
Die Aufspannflächen sind mit 0,5 mm Aufmaß vorgearbeitet.
Hinweis:
Die Aufspannwürfel sind abgestimmt auf Paletten für Werkzeugmaschinen nach DIN 55201 und auf Paletten für Werkzeugmaschinen nach JIS 6337-1980.
Ringschrauben für den Transport werden mitgeliefert. Ein Deckel verhindert, dass sich die Hohlräume der Aufspannwinkel mit Spänen füllen.
Spezifikationen
Ausführung 1
ohne Bohrung
Material Grundkörper
Grauguss
E
315
G
25
D
351 ±0,2
H
55
A
803
C
100
E1
175,5 ±0,2
B
800
Gewicht
425 KG



