Beschreibung
Werkstoff:
GJL 300.
Ausführung:
Auflage- und Aufspannflächen präzisionsbearbeitet.
Hinweis:
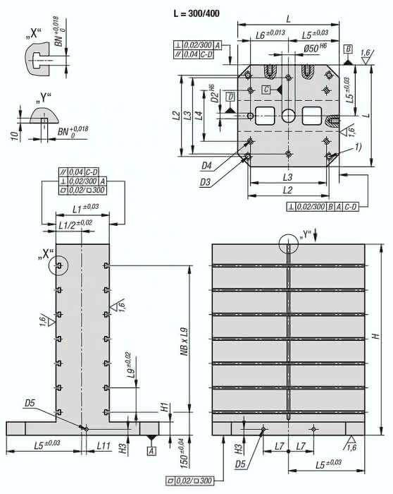
Aufspannwürfel mit T-Nuten werden zum Aufbau von modularen Vorrichtungen auf horizontalen Maschinen eingesetzt.
Die genauen Nutenabstände in Längs- und Querrichtung garantieren eine sehr hohe Wiederholgenauigkeit der Aufspannungen.
Die Aufspannwürfel sind abgestimmt auf Maschinentischen für Werkzeugmaschinen nach DIN 55201 und JIS6337-1980.
Positionierbolzen zum Abstecken der Paletten auf Maschinentischen nach DIN 55201 müssen separat bestellt werden.
Lieferung inklusive Ringschrauben für den Transport.
Weitere Abmessungen auf Anfrage.
Zeichnungshinweis:
1) Durchgangsbohrung für Zylinderschraube DIN 912 (D3/D4)
Spezifikationen
Material Grundkörper
GJL300
Ausführung 1
doppelseitig
L2
800
L1
350
H
1.000
D5
M16
H1
55
D2
25
H3
18
D3
M20
D4
M20
L3
600
L
1.000
L5
500
L6
400
L4
200
L7
165
L9
160
BN=Nutbreite
18
L11
25
L8
400
NB=Anzahl in Querrichtung
5
Gewicht
1.158 KG



