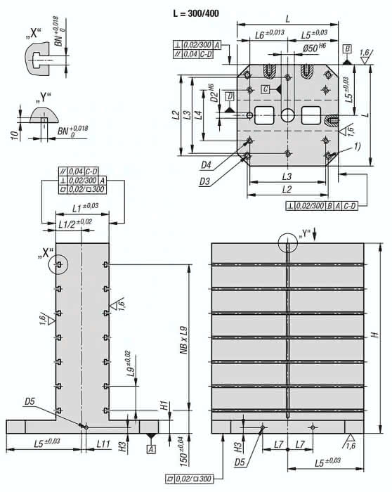
Beschreibung
Werkstoff:
GJL 300.
Ausführung:
Auflage- und Aufspannflächen präzisionsbearbeitet.
Hinweis:
Aufspannwürfel mit T-Nuten werden zum Aufbau von modularen Vorrichtungen auf horizontalen Maschinen eingesetzt.
Die genauen Nutenabstände in Längs- und Querrichtung garantieren eine sehr hohe Wiederholgenauigkeit der Aufspannungen.
Die Aufspannwürfel sind abgestimmt auf Maschinentischen für Werkzeugmaschinen nach DIN 55201 und JIS6337-1980.
Positionierbolzen zum Abstecken der Paletten auf Maschinentischen nach DIN 55201 müssen separat bestellt werden.
Lieferung inklusive Ringschrauben für den Transport.
Weitere Abmessungen auf Anfrage.
Zeichnungshinweis:
1) Durchgangsbohrung für Zylinderschraube DIN 912 (D3/D4)
Spezifikationen
Ausführung 1
doppelseitig
Material Grundkörper
GJL300
L
800
D5
M16
BN=Nutbreite
18
L1
300
L5
400
L6
300
L9
150
L4
400
D2
25
D3
M16
D4
M16
H
1.000
H1
50
L11
25
H3
18
L2
640
L7
135
NB=Anzahl in Querrichtung
5
L3
600
Gewicht
785 KG



