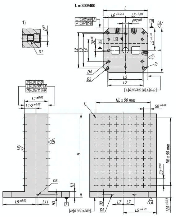
Beschreibung
Werkstoff:
GJL 300.
Ausführung:
Auflage- und Aufspannflächen präzisionsbearbeitet.
Hinweis:
Rasterabstand 50 ±0,02 mm.
Aufspannwürfel mit Rasterbohrungen werden auf horizontalen Bearbeitungszentren eingesetzt.
Die alphanumerisch beschrifteten Rasterbohrungen garantieren eine definierte Zuordnung der Spannelemente im Wiederholfall.
Die Aufspannwürfel sind abgestimmt auf Maschinentischen für Werkzeugmaschinen nach DIN 55201 und JIS6337-1980.
Positionierbolzen zum Abstecken der Paletten auf Maschinentischen nach DIN 55201 müssen separat bestellt werden.
Schutzstopfen zum Verschließen der Rasterbohrungen müssen separat bestellen werden.
Lieferung inklusive Ringschrauben für den Transport.
Weitere Abmessungen auf Anfrage.
Zeichnungshinweis:
1) Rasterbohrung
2) Durchgangsbohrung für Zylinderschraube DIN 912 (D3/D4)
Spezifikationen
Material Grundkörper
GJL300
Ausführung 1
doppelseitig
L
630
D
12
D1
M12
D3
M16
D2
25
D5
M16
L1
250
NL=Anzahl in Längsrichtung
11
D4
M16
L2
500
L6
200
NB=Anzahl in Querrichtung
14
L3
400
L7
100
H
850
L5
315
H1
50
H3
18
Anzahl der Rasterbohrungen
360
L11
25
Gewicht
515 KG



