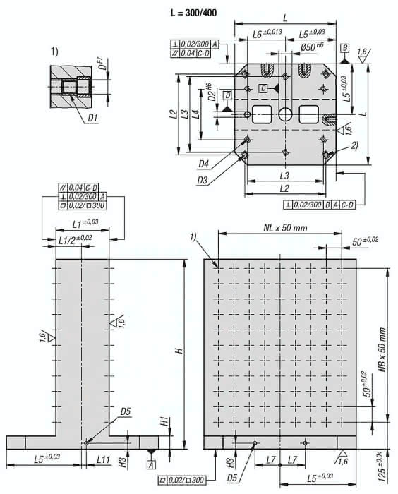
Beschreibung
Werkstoff:
GJL 300.
Ausführung:
Auflage- und Aufspannflächen präzisionsbearbeitet.
Hinweis:
Rasterabstand 50 ±0,02 mm.
Aufspannwürfel mit Rasterbohrungen werden auf horizontalen Bearbeitungszentren eingesetzt.
Die alphanumerisch beschrifteten Rasterbohrungen garantieren eine definierte Zuordnung der Spannelemente im Wiederholfall.
Die Aufspannwürfel sind abgestimmt auf Maschinentischen für Werkzeugmaschinen nach DIN 55201 und JIS6337-1980.
Positionierbolzen zum Abstecken der Paletten auf Maschinentischen nach DIN 55201 müssen separat bestellt werden.
Schutzstopfen zum Verschließen der Rasterbohrungen müssen separat bestellen werden.
Lieferung inklusive Ringschrauben für den Transport.
Weitere Abmessungen auf Anfrage.
Zeichnungshinweis:
1) Rasterbohrung
2) Durchgangsbohrung für Zylinderschraube DIN 912 (D3/D4)
Spezifikationen
Ausführung 1
doppelseitig
Gewicht
265 KG
H
600
L
500
D
12
Material Grundkörper
GJL300
D4
M12
L1
200
D5
M16
D1
M12
L3
200
D2
20
D3
M16
L5
250
L6
200
H3
18
L7
75
H1
50
NL=Anzahl in Längsrichtung
9
NB=Anzahl in Querrichtung
9
L11
25
Anzahl der Rasterbohrungen
200
L2
400



