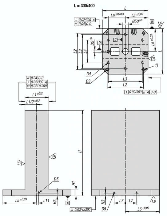
Beschreibung
Werkstoff:
GJL 300.
Ausführung:
Auflage- und Aufspannflächen präzisionsbearbeitet.
Die Aufspannflächen sind mit 1 mm Aufmaß vorbearbeitet.
Hinweis:
Aufspannwinkel mit vorgearbeiteten Aufspannflächen bieten eine schnelle und wirtschaftliche Möglichkeit, Grundkörper mit spezifischen Raster- oder individuellen Bohrungen herzustellen. Der Fuß ist fertig bearbeitet für die Montage auf den Maschinentisch. Die zwei Aufspannflächen können kundenseitig auf Fertigmaß bearbeitet werden. Die Aufspannwinkel sind abgestimmt auf Maschinentischen für Werkzeugmaschinen nach DIN 55201 und JIS6337-1980.
Positionierbolzen zum Abstecken der Paletten auf Maschinentischen nach DIN 55201 müssen separat bestellt werden.
Lieferung inklusive Ringschrauben für den Transport.
Weitere Abmessungen auf Anfrage.
Zeichnungshinweis:
1) Durchgangsbohrung für Zylinderschraube DIN 912 (D3/D4)
Spezifikationen
Ausführung 1
doppelseitig
Material Grundkörper
GJL300
L
400
D2
20
D3
M16
H
650
H1
50
L1
151
H3
18
L3
300
D4
M12
D5
M16
L6
150
L7
55
L5
200
L4
200
L11
25
L2
320
Gewicht
215 KG



