Beschreibung
Werkstoff:
GJL 300.
Ausführung:
Auflage- und Aufspannflächen geschliffen.
Hinweis:
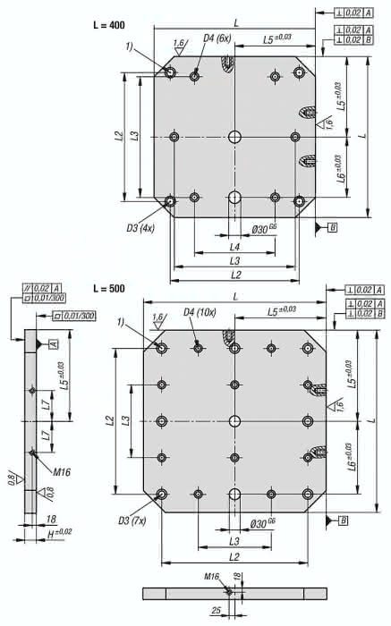
Paletten mit vorgearbeiteten Aufspannflächen bieten eine schnelle und wirtschaftliche Möglichkeit, Grundkörper mit spezifischen Raster- oder individuellen Bohrungen herzustellen. Die Paletten sind abgestimmt auf Maschinentischen für Werkzeugmaschinen nach DIN55201 und JIS6337-1980.
Positionierbolzen zum Abstecken der Paletten auf Maschinentischen nach DIN 55201 müssen separat bestellt werden.
Lieferung inklusive Ringschrauben für den Transport.
Weitere Abmessungen auf Anfrage.
Zeichnungshinweis:
1) Durchgangsbohrung für Zylinderschraube DIN 912 (D3/D4)
Spezifikationen
Ausführung 1
mit vorbearbeiteten Aufspannflächen
Material Grundkörper
GJL300
L
630
D3
M16
H
50
L3
400
D4
M16
L6
200
L7
100
L5
315
L4
200
L2
500
Gewicht
140 KG



