Beschreibung
Werkstoff:
GJL 300.
Ausführung:
Aufspannflächen geschliffen.
Hinweis:
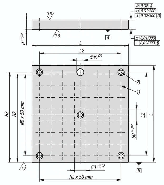
Wechselpaletten mit Rasterbohrungen werden zusammen mit dem Aufspannwinkel doppelseitig verwendet. Die Wechselpaletten werden an dem Aufspannwinkel doppelseitig abgesteckt und befestigt. Dadurch ist ein rationelles Austauschen von Spannvorrichtungen möglich.
Die alphanumerisch beschrifteten Rasterbohrungen garantieren eine definierte Zuordnung der Spannelemente im Wiederholfall.
Schutzstopfen zum Verschließen der Rasterbohrungen müssen separat bestellt werden.
Zeichnungshinweis:
1) Rasterbohrung
2) Durchgangsbohrung für Zylinderschraube DIN 912, M16
Spezifikationen
Ausführung 1
mit Rasterbohrungen
H
40
D
16
Gewicht
67 KG
L2
450
D1
M16
Material Grundkörper
GJL300
H2
470
L
500
H3
470
Anzahl der Befestigungsbohrungen
7
N1=Anzahl Rasterbohrungen
90
NL=Anzahl in Längsrichtung
9
NB=Anzahl in Querrichtung
9




