Beschreibung
Werkstoff:
GJL 300.
Ausführung:
Aufspannflächen geschliffen.
Hinweis:
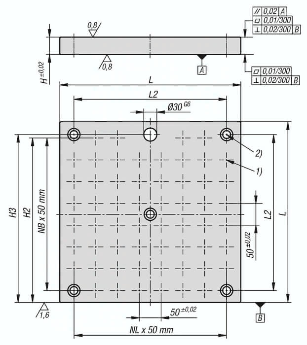
Wechselpaletten mit Rasterbohrungen werden zusammen mit dem Aufspannwinkel doppelseitig verwendet. Die Wechselpaletten werden an dem Aufspannwinkel doppelseitig abgesteckt und befestigt. Dadurch ist ein rationelles Austauschen von Spannvorrichtungen möglich.
Die alphanumerisch beschrifteten Rasterbohrungen garantieren eine definierte Zuordnung der Spannelemente im Wiederholfall.
Schutzstopfen zum Verschließen der Rasterbohrungen müssen separat bestellt werden.
Zeichnungshinweis:
1) Rasterbohrung
2) Durchgangsbohrung für Zylinderschraube DIN 912, M16
Spezifikationen
Ausführung 1
mit Rasterbohrungen
Material Grundkörper
GJL300
D
16
D1
M16
H
40
H2
370
H3
370
Anzahl der Befestigungsbohrungen
5
L
400
N1=Anzahl Rasterbohrungen
58
NL=Anzahl in Längsrichtung
7
NB=Anzahl in Querrichtung
7
L2
350
Gewicht
41 KG




