Beschreibung
Werkstoff:
GJL 300.
Ausführung:
Auflage- und Aufspannflächen geschliffen.
Hinweis:
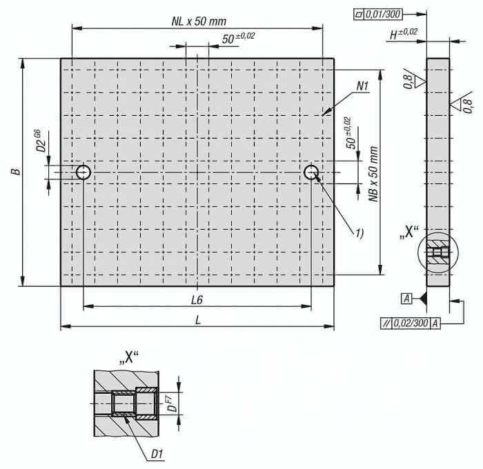
Rasterabstand 50 ±0,02 mm.
Grundplatten mit Rasterbohrungen werden zum Aufbau von modularen Vorrichtungen eingesetzt. Diese Grundplatten werden direkt auf Maschinentische positioniert und befestigt.
Die zwei Richtbohrungen dienen zum Ausrichten der Grundplatte auf dem Maschinentisch.
Befestigungsbohrungen werden kundenseitig passend zum Maschinentisch eingearbeitet.
Die alphanumerisch beschrifteten Rasterbohrungen garantieren eine definierte Zuordnung der Spannelemente im Wiederholfall.
Positionierbolzen zum Abstecken der Grundplatten müssen separat bestellen werden.
Schutzstopfen zum Verschließen der Rasterbohrungen müssen separat bestellt werden.
Lieferung inklusive Ringschrauben für den Transport.
Weitere Abmessungen auf Anfrage.
Zeichnungshinweis:
1) Positionierbohrung
Spezifikationen
Ausführung 1
mit Rasterbohrungen
Material Grundkörper
GJL300
H
50
D
12
D1
M12
N1=Anzahl Rasterbohrungen
158
D2
30
L6
800
B
450
L
900
NL=Anzahl in Längsrichtung
17
NB=Anzahl in Querrichtung
8
Gewicht
138 KG



